114252 Оферти3745 Агенции26681 Потребители

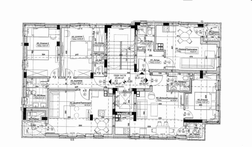
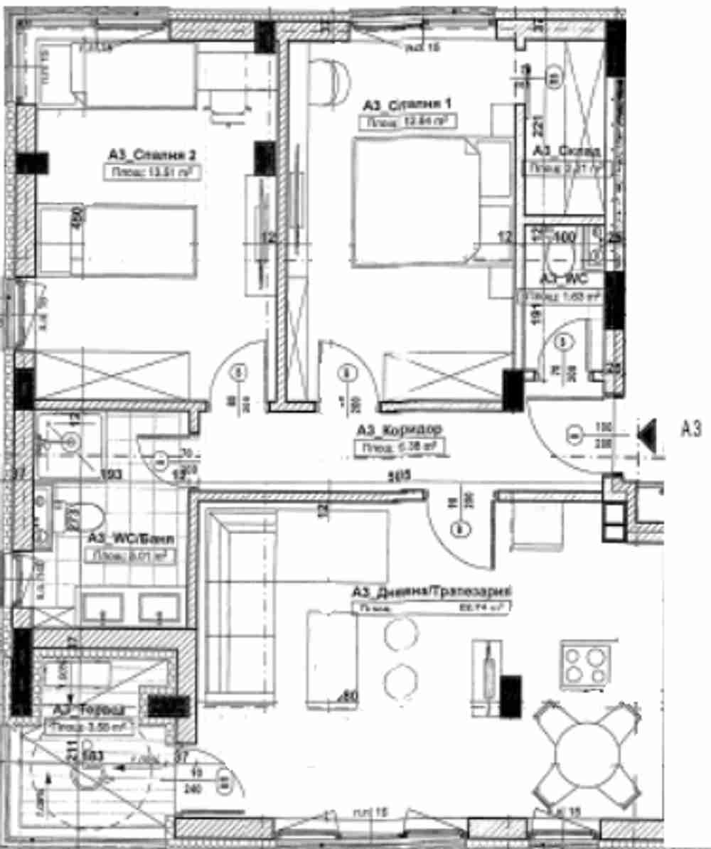
Продава Тристаен апартамент гр.София -Люлин 9 171600 EUR

РубрикаПродава
Вид на имотаТристаен апартамент
Квартал Люлин 9
Населено мястогр.София
Област:София
ДържаваBulgaria - BG
Цена / Валута
171600 EUR
Площ101.00
Тип строителствоТухла
Етаж1
Етажност5
Описание:

Sofia In /www.sofiain.com/ представя на Вашето внимание: Новострояща се жилищна сграда, разположена в спокоен и добре устроен район на столичния квартал Люлин 9. Местоположението ѝ осигурява удобен достъп до важни пътни артерии и разнообразни възможности за градски транспорт, което я прави подходящ избор за комфортен градски живот. Сградата се намира в непосредствена близост до: * бул. „Сливница“ и метростанция „Сливница“ * бул. „Царица Йоанна“ и метростанция „Западен парк“ Само на няколко минути пеша ще откриете: * 37 СУ "Райна Княгиня" * 139 ОДЗ "Панорама" * 12-то ДКЦ * Парк „Западен парк“ На пешеходно разстояние се намират спирки на: * автобуси: 82, 108, 309 * тролейбус: №6 * метростанции: „Сливница“ и „Западен парк“ В сградата се предлагат: * Едностайни апартаменти – компактни и удобни за самостоятелно живеене * Двустайни апартаменти – с функционално разпределение, подходящи за двойки или малки семейства * Тристайни апартаменти – просторни жилища с комфортна дневна зона и отделни спални помещения * Надземни гаражи - 30 000 евро * Подземни гаражи 45 000 евро Отоплението е на ТОК. Спокойна жилищна среда, близост до зелени площи и добра свързаност с останалите части на града – всичко необходимо за удобно и балансирано ежедневие. ПРИ ИНТЕРЕС ОТ ВАША СТРАНА МОЖЕ ДА СЕ СВЪРЖЕТЕ С ОТГОВОРНИЯ КОНСУЛТАНТ ЗА НАЧИНА НА ПЛАЩАНЕ И ФИНАНСИРАНЕ НА ПОКУПКАТА. Ние Ви осигуряваме безплатно съдействие за банков кредит от нашите банки – партньори на преференциални условия Имате възможност да резервирате имота и да го свалим от продажба със заплащане на депозит. След това се прекратява провеждането на огледи с други купувачи и започва подготовка на документите за сключване на предварителен и окончателен договор. Свържете се с отговорния консултант за тази обява за подробна информация относно процедурата за покупка и начина за плащане. За всички наши клиенти ние осигуряваме безплатна юридическа и правна подкрепа по време на сключване на сделката! ДОПЪЛНИТЕЛНИ УСЛУГИ: Ние сме компания, за която на първо място сте Вие, нашите клиенти, точно за това освен покупката на имота ние Ви предлагаме допълнителни услуги, които ще направят ползването на новозакупения имот пълноценно и безпроблемно. Допълнителните услуги, които предлагаме включват: ✔️ Проектиране на интериорен дизайн и обзавеждане; ✔️ Извършване на довършителни и/или ремонтни дейности с екип от професионалисти; ✔️ Цялостно обзавеждане с качествени мебели на достъпни цени; ✔️ Пълен набор от услуги по управление на Вашия имот! Тази и много други оферти можете да разгледате на интернет страницата ни: www.sofiain.com Очакваме Ви!
Номер на офертата1026717
Дата на посл. промянаThu Nov 06 2025
Брой посетители76
За контакти: Фирма: СОФИЯ ИН
Държава: Bulgaria
Населено място: гр.София
Адрес: ул. Нишава № 153, ет.1
Телефони за контакт: 0882654900
E-mail: m.tonev@sofiain.com

https://sofiain.portalre.net